Perustiedot
Ominaisuudet
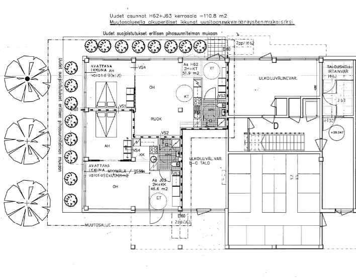
Kohteen kuvaus
Tämä liiketila on muutettavissa kahdeksi kaksioksi piirustusten mukaan. Se sijaitsee kerrostalon sisäpihalla ensimmäisessä kerroksessa. Oma tontti. Vastikkeet/m2 samat kuin taloyhtiön muissa asunnoissa. Hyvin hoidettu taloyhtiö, jossa sauna ja uima-allasosasto.
Espoon kaupungin rakennusluvat ovat valmiina ja rakentamisen voi aloittaa heti.
Velattoman myyntihinnan lisäksi tulee ostaa valmiina olevat arkkitehti-, rakennus- ja LVI-piirustukset ym. luvat omakustannushintaan.
Tämä kohde sopii gryndarille, flippaajalle tai omaan käyttöön rakentajalle.
Velaton hinta: 158.986,23 eur, myyntihinta 1.500 eur/m2 151.500 eur.
Ota rohkeasti yhteyttä niin kerromme kohteesta lisää. Lähetä viesti.
Ota yhteyttä ilmoittajaan!
Jos haluat laittaa viestejä ilmoittajalle, ole hyvä ja rekisteröidy palveluumme tästä.
